Топова локація! Фасад на Мукачевській - 17 м² для Вашого бізнесу! (№ 15-121-091)
Ціна: 22 500 грн.

Адреса: Мукачевская ул., 4/7, Київ, Оболонський
Характеристики
| Ціна: | 22 500 грн. |
|---|---|
| № об'єкта: | 15-121-091 |
| Тип: | торгівельні площі, кафе, бар, ресторан, інше |
| Поверх: | 1 / - |
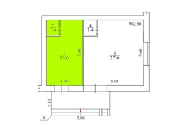
| Площа: | 17 м2 |
| Ремонт: | - |
| Додатково: | окремий вхід |
Опис
Здається в оренду комерційне приміщення площею 17 м² за адресою: Київ, вулиця Мукачевська, 4/7. Об’єкт розташований у густонаселеному районі з активним щоденним трафіком мешканців, поруч зі школами, садочками, магазинами та зручною транспортною розв’язкою.
Приміщення має фасадний вхід і великі вітрини, що забезпечують хорошу видимість та створюють привабливу презентацію для бізнесу. Перед входом облаштована нова бруківка та охайна територія, що дозволяє комфортно встановити зовнішню рекламу чи літню зону, якщо це потрібно концепцією.
Планування приміщення раціональне та дозволяє легко адаптувати простір під магазин, салон краси, офіс, сервісний центр, кав’ярню на виніс або пункт видачі замовлень. Усередині — приміщення після будівельних робіт, готове під ремонт та індивідуальне облаштування. Вхід зручний, простір правильної форми, можливий комфортний під’їзд автомобілів і паркування поруч.
Локація вирізняється активністю: поряд розташовані АТБ, аптеки АНЦ і Подорожник, Domino’s Pizza, магазини побутових товарів та різні сервісні заклади. Усе це формує стабільний потік потенційних клієнтів.
Приміщення підійде для підприємців, які шукають компактний, але ефективний фасадний об’єкт у житловому районі з хорошою видимістю та трафіком. Готовий організувати перегляд у зручний час.









